Nacional

Ecuador se alista para la llegada de tropas estadounidenses: revelan planos de lo que sería una base en Manta

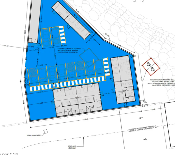
La estructura contará con viviendas y oficinas administrativas de estilo cuartel.

Ecuador se prepara para la llegada de fuerzas militares estadounidenses con la construcción de una base naval en Manta, según reveló este sábado la cadena CNN, que obtuvo los planos de la estructura que ya está en construcción.

Según los documentos a los que accedió el medio internacional, “el Ministerio de Defensa de Ecuador firmó recientemente un acuerdo con la autoridad portuaria de Manta para construir un muelle de 150 metros y ampliar el puerto existente en más de 700 metros cuadrados”.

Revise: Daniel Noboa pide a Cancillería iniciar acciones para el 'ingreso de fuerzas especiales internacionales' en Ecuador

Estos proyectos cuentan con el apoyo de Estados Unidos. De hecho, un representante de ese país estuvo en la firma del acuerdo, según reveló un funcionario ecuatoriano que prefirió mantenerse bajo el anonimato.

Esa fuente le dijo a CNN que la construcción de la nueva base naval contará con “viviendas y oficinas administrativas de estilo cuartel diseñadas para apoyar operaciones sostenidas y al personal militar estadounidense”.

“La expectativa es que eventualmente estas zonas serán ocupadas por tropas estadounidenses”, aseguró el funcionario.

Se espera que la idea sea confirmada este fin de semana, ya que Noboa tiene previsto una reunión este sábado con el presidente estadounidense Donald Trump para hablar sobre inmigración, comercio y cooperación en materia de seguridad.

El funcionario ecuatoriano resaltó que la rápida construcción de la estructura en Manta refleja la prontitud con la que Ecuador espera que llegue la ayuda internacional.

Revise: Estados Unidos y Ecuador reanudan proyectos de seguridad para luchar contra el crimen organizado

NOBOA YA LO HABÍA ANTICIPADO

La idea de que lleguen tropas estadounidenses a Ecuador no es nueva. Daniel Noboa ha pedido ayuda a la comunidad intencional en varias ocasiones.

En febrero también solicitó a la Cancillería que inicie acciones para el “ingreso de fuerzas especiales internacionales”.

De igual manera, se han reanudado varios proyectos que contaban con el apoyo de la Oficina de Antinarcóticos y Aplicación de la Ley (INL, por sus siglas en inglés) y que estaban en pausa debido a factores geopolíticos.

Entre los proyectos reactivados se incluyen la donación de vehículos y botes patrulleros para la Policía Nacional y la Armada del Ecuador, la construcción de una base de interdicción marítima (DEA) y la remodelación de infraestructuras clave como la Escuela de Poligrafistas en Guayaquil y la clínica veterinaria de la Policía Nacional en Quito. La inversión total supera los 3.9 millones de dólares.

El Ejecutivo ha destacado que la ejecución de estos proyectos refuerza las capacidades operativas de las fuerzas del orden y demuestra el respaldo internacional al Gobierno Nacional en su lucha contra el crimen organizado y la inseguridad.

Más leídas
 
Lo más reciente